Schweißtechnik (1): Metallschweißen 18.01.2010, 15:08
Das verbreitetste industrielle Metallschweißverfahren ist das MAG-Schweißen (Metallschweißen mit aktiven Gasen). Es eignet sich besonders für unlegierte und niedrig legierte Stähle. In der Übersicht wird auch das Brennschneiden angesprochen.
2. Ausbildungsjahr
Metallschweißen
Beim Schweißen werden Bauteile unter Anwendung von Wärme oder Druck unlösbar miteinander verbunden. Dies kann mit oder ohne Kraft und mit oder ohne Schweißzusätze geschehen. Einige Schweißverfahren:
Das Gasschmelzschweißen, ein relativ langsames und deshalb an Bedeutung verlierendes Verfahren; wird im Heizungs-, Installations- und Rohrleitungsbau und bei Instandsetzungsarbeiten angewendet.

Die verbreitetsten Schweißverfahren sind das Lichtbogenhandschweißen und das Schutzgasschweißen. Über weitere wichtige, aber auch spezielle Schweißverfahren gibt Wikipedia Auskunft.
Unterrichtsversuche zum Thema Gasschmelzschweißen finden Sie hier.
Lichtbogenhandschweißen
Zwischen einer als Zusatzwerkstoff abschmelzenden Elektrode und dem Werkstück wird als Wärmequelle ein elektrischer Lichtbogen genutzt. Die hohe Temperatur des Lichtbogens schmelzt den Werkstoff an der Schweißstelle auf. Schweißstromquellen sind Schweißtransformatoren, Schweißumformer oder Schweißinverter. Man kann mit Gleichstrom oder Wechselstrom schweißen. Die Umhüllung der Stabelektrode entwickelt beim Abschmelzen Gase und Schweißschlacken. Die Gase stabilisieren den Lichtbogen und hindern den Luftsauerstoff, das Schweißbad zu oxidieren.

Schutzgasschweißen
Ein Problem beim Lichtbogenschweißen: Bei den hohen Temperaturen reagieren Sauerstoff und Stickstoff aus der Umgebungsluft mit dem Schweißgut und vermindern dadurch die Qualität der Schweißnaht. Um solche Einflüsse auszuschalten, schirmt man beim Schutzgasschweißen die Schweißstelle mit einem mit Metallen nicht reagierenden Schutzgas ab.
Das Metallschutzgasschweißen (MSG), ist ein Lichtbogenschweißverfahren, bei dem der abschmelzende Schweißdraht von einem Motor kontinuierlich nachgeführt wird. Gleichzeitig mit dem Drahtvorschub wird die Schweißstelle mit dem aus einer Düse strömenden Schutz- oder Mischgas geschützt.

Metallschutzgasschweiß-Verfahren:
MIG (Metallschweißen mit inerten Gasen) verwendet das Edelgas Argon, seltener auch das teure Edelgas Helium.
Das MAG-Schweißen (Metallschweißen mit aktiven Gasen) verwendet entweder reines CO2 oder ein Mischgas aus Argon und geringen Anteilen CO2 und O2. Das MAG-Verfahren wird in erster Linie bei unlegierten und niedrig legierten Stählen eingesetzt, das MIG-Verfahren bevorzugt bei höher legierten Stählen und Aluminiumlegierungen.
Thermisches Trennen
Mit den thermischen Schneidverfahren können Metallteile aus Stahl, Aluminium, Kupfer, Guss oder Messing getrennt werden. Vorteile: Durch die Energiedichte wird eine hohe Trenngeschwindigkeit bei grat- und verzugsfreien Schnitten erreicht. Schneidverfahren sind das Autogene Brennscheiden, das Schneiden mit Laserstrahl und das Plasmaschneiden. Dabei brennt ein elektrischer Lichtbogen zwischen dem Werkstück und einer nicht abschmelzenden Elektrode.
Werkzeug beim autogenen Brennschneiden, das wie auch das Plasmaschneiden eine Variante des thermischen Trennens ist, ist ein Schneidbrenner, der von Hand oder durch einen Roboter geführt wird.

Beim Schneidprozess wird der zu trennende Werkstoff durch eine Acetylen-Sauerstoff-Flamme auf Zündtemperatur gebracht und dann mit dem Schneidsauerstoff verbrannt. Die entstehenden Oxide werden zusammen mit der Schmelze vom Schneidsauerstoffstrahl ausgeblasen. Beim Brennschneiden wird Wärme frei, die neben der Energie der Heizflamme dafür sorgt, dass die Entzündungstemperatur erhalten bleibt. Dafür muss der zu schneidende Werkstoff folgende Voraussetzungen erfüllen:
- Der Werkstoff muss im Sauerstoffstrom verbrennbar sein.
- Die Entzündungstemperatur muss unterhalb der Schmelztemperatur liegen.
- Die entstehenden Oxide müssen dünnflüssig sein.
- Die Wärmeleitfähigkeit des Werkstoffs darf nicht zu groß sein.
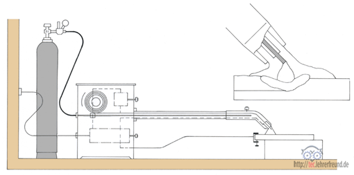
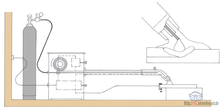
Die unvollständigen Skizzen unten sind für die Verwendung in Arbeitsblättern gedacht.
In einem weiteren Beitrag befassen wir uns mit der zeichnerischen Darstellung von Schweißnähten


