Frästeil festspannen 15.02.2018, 06:57
Spannpratze: Berechnungen zu den Themen Auflagerkräfte, Reibung und Arbeit. Zeichnung: Eine Spannpratze in Ansichten darstellen und bemaßen.
Frästeil festspannen
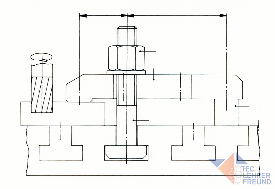
Bild: Ein Frästeil wird mit einer Spannpratze auf den Frästisch gedrückt.
Aufgaben
1. Reibzahl zwischen Spannpratze und Frästeil µ = 0,12.
Welche Spannkraft FSp muss aufgebracht werden, um das Frästeil gegen Verschieben mit der Verschiebekraft FH = 1 500 N zu sichern?
2. Welche Kraft F muss die Spannmutter auf die Pratze ausüben, wenn an der Spannstelle eine Spannkraft FSp = 7 000 N wirken soll? Wie groß wird dabei FAufl?
3. Hammerschraube M 16, Schraubenschlüssel-Länge: Welchen wirksamen Hebelarm lH benötigt man mindestens, wenn eine Handkraft FHand = 100 N aufgebracht wird und dabei die senkrechte Schraubenkraft F = 30 kN wirken soll? Die Reibzahl soll nicht berücksichtigt werden.
4. Die Druckfläche der Spannpratze auf der Spannseite ist ca. 42 mm x 20 mm groß. Wenn die zulässige Flächenpressung für Vergütungsstahl mit pzul = 100 N/mm2 angenommen wird: Wird sie erreicht?
5. Zeichnen und bemaßen Sie die Spannpratze. Sie ist 160 mm lang, 42 mm breit und 20 mm dick. Der linke Spannnocken (FSp) ist 2 mm dick. Die durchgehende Nute ist 17 mm breit und außen 62 mm lang. Auf der Spannseite ist die Pratze mit 30° auf 15 mm Länge abgeschrägt. Die vier Ecken (Draufsicht) sind mit R = 5 mm abgerundet.
Legen Sie die übrigen Maße selbst fest.
Lösungsvorschläge:
1. Die Reibkraft wirkt an zwei Flächen. Deshalb muss FSp nur die halbe Verschiebekraft FH halten.
FH/2 = FSp • µ ––> FSp = FH/2 : µ = 1 500 N/2 : 0,12 = 6 250 N
FSp = 6,25 kN
2. ΣMAufl. = 0 = – FSp • (l1 + l2) + F • l2 =
7 000 N • 116 mm : 78 mm = 10 410 N
F = 10,41 kN
ΣFy = 0 = FSp + FAufl – F ––> FAufl = F – FSp = 10,41 kN – 6,25 kN =
FAufl = 4,16 kN
3. Tipp: Lesen Sie hier nach. Im Beitrag »Einfache Maschinen (1)« finden Sie die Formel:
Aufgewendete Arbeit = Erhaltene Arbeit
W1 = W2
FHand • π • 2 • r = F • P (r ist die Schlüssellänge lH; P ist die Gewindesteigung. M16 hat eine Steigung P = 2 mm)
r = lH = F • P : (FHand • π • 2) = 30 000 N • 2 mm : (100 N • π • 2)
lH = 95,5 mm
4. p = FSp : A = 6250 N/mm2 : 42 mm • 20 mm = 7,4 N/mm2. Der Maximalwert von 100 N/mm2 wird nicht erreicht.
5. Spannpratze zeichnen
Zeichnungen für Arbeitsblätter


