Überdruckventil: Fehlerhafte Zeichnung 15.07.2013, 06:07
Sich in Gesamtzeichnungen hineinzudenken ist mit geringem zeitlichem Aufwand möglich, wenn die Zeichnung fertig vorliegt, aber Fehler enthält. Solche sollen – wie im vorliegenden Beitrag – erkannt und beschrieben werden.
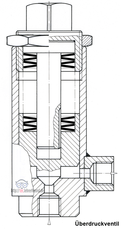
Überdruckventil
Gegeben ist ein Überdruckventil mit Tellerfedersäule. Pfeile kennzeichnen die Richtung des Ölstroms.
Die Gesamtzeichnung enthält 11 zeichnerische Fehler, die gefunden und beschrieben werden sollen.

Fehlerhafte Zeichnung oben:
a) Nummerieren Sie die Einzelteile und geben Sie ihnen Namen.
b) Bezeichnen Sie die Stellen mit Fehlern mit Buchstaben a, b, c usw. Beschreiben Sie in kurzen Sätzen, warum die genannten Stellen fehlerhaft sind.
Lösungsvorschläge

Zeichnung oben:
a) Einzelteile, Benennung
1 = Ventilgehäuse; 2 = Einstellschraube; 3 = Sechskantmutter; 4 = Führungsbolzen; 5 = Ventileinsatz; 6 = Tellerfeder; 7 = Anschlussstutzen
b) Zeichnungsfehler
a: Fase des Vierkants geht nicht ganz bis oben; an sie schließen sich die Fasenbögen an.
b: Umlaufende Kante des Führungsbolzens 4 fehlt
c: Umlaufende Kante von Teil 2 fehlt
d: Umlaufende Kante des Gewindeendes von Teil 1 fehlt
e: Umlaufende Kante von Teil 5 fehlt
f: Umlaufende Kante der Fase von Teil 4 fehlt
g: In der Schnittfläche ist keine sichtbare Kante zu sehen
h: Die Kante liegt verdeckt hinter dem Schließkegel
k: Umlaufende Kante der Querbohrung von Teil 1 fehlt
l: Umlaufende Kante zwischen Teil 1 und 7 fehlt
m: Umlaufende Kante des Gewindeendes von Teil 7 fehlt
_______________________________________________
Korrekte Zeichnung oben
