3D-CAD (4.1): 2D-Zeichnung erstellen, Stolperfallen 29.11.2013, 07:01
Bevor wir uns der 2D-Darstellung von Bauteilen des Stößelantriebs zuwenden, sind im verwendeten Programm von SOLIDWORKS einige Einstellungen zu ändern, die leicht zu Stolperfallen werden könnten.
(In diesem Beitrag wird ein Bauteil mit MCAD erstellt. Das verwendete Programm ist Software von SOLIDWORKS, Studentenversion 2013/14).
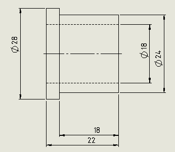
Unsere Absicht: Auf einem virtuellen DIN A4-Blatt wollen wir von der Lagerbuchse (Bild Z1) eine Zeichnung anfertigen (Bild Z2). Die Lagerbuchse ist ein Bauteil des Stößelantriebs (folgendes Bild):

Bild Z1
Bild Z2
Bild Z3
1. Neu ––> Zeichnung ––> OK. Es erscheint die Vorlage eines »Zeichenblatts«, von dem wir nicht überzeugt sind, denn es sieht nicht nach einem A4-Format aus. Aber da wir jetzt malen wollen, akzeptieren wir es so lange, bis neue Schwierigkeiten auftauchen. Dann ist immer noch Zeit, zu reparieren.
2. Einfügen ––> Zeichenansicht ––> Modell.
PropertyManager: Modellansicht ––> Einzufügendes Teil ––> Durchsuchen. Aus aufklappendem Ordner unter Name das zu zeichnende Teil auswählen, hier Lagerbuchse ––> Öffnen. Das zunächst nur aus einem rechteckigen Rahmen bestehende Teil in das Editierfeld ziehen. Da die Lagerbuchse in einer einzigen Ansicht ausreichende Informationen liefert, genügt diese Ansicht, aber es muss die richtige sein. Wenn drei Kreise erscheinen, ist es die Seitenansicht, die wir nicht wollen.
Im PropertyManager öffnet Zeichenansicht ––> Ausrichtung ––> Standardansicht Links, diese bringt die Lagerbuchse in Bearbeitungslage (ISOCPEUR). OK.
3. Das Teil benötigt eine Mittellinie: Einfügen ––> Beschriftungen ––> Mittellinie.
Das Programm weiß nicht, wo wir unsere Mittellinie wollen. Es belehrt uns: »Um Mittellinien manuell einzufügen, wählen Sie zwei Kanten ... oder eine einzelne zylindrische ... Fläche aus.« Wir wählen den kleineren Außendurchmesser, und schon ist die Mittellinie da.
4. Wir bemaßen das Teil nun mit Hilfe Intelligente Bemaßung.
Doch die Überraschung ist groß: Im (amerikanischen!) SolidWorks-Programm sind offensichtlich Eigenschaften voreingestellt, die uns treuen Anhängern der DIN/ISO-Norm nicht gefallen können: eine seltsam breite Schrift, hohle Pfeile, eingeklammerte Maße usw.
Diese System-Stolperfalle müssen wir zuerst in Ordnung bringen. Wir begnügen uns hier mit den wichtigsten Einstellungen. So kümmern wir uns im Moment z. B. nicht um Einzelheiten des Schriftfelds und ähnliche Details.
______________
Zuerst suchen wir unseren Computer daraufhin durch, ob es eine Normschrift gibt (http://de.wikipedia.org/wiki/Normschrift). Gibt es sie nicht, laden wir sie von Google herunter. Die Schrift heißt ISOCPEUR. Schritte in WINDOWS: Systemsteuerung ––> Schriftarten ––> Datei ––> Neue Schriften installieren.
Isocpeur ist eine extrem nüchtern geschnittene, klare und gut lesbare Schrift, weshalb sie zur Normschrift erwählt wurde (Schriftbeispiel Bild Z4).
Bild Z4
Nach dem Installieren der Schrift ist ein SolidWorks-Neustart erforderlich.
Wir wenden uns dem Blattformat zu.
Im PropertyManager klicken wir Blatt1 an und erhalten durch Mausrechtsklick Blatt1 ––> Eigenschaften ... (Bild Z5). Dort wählen wir A4 (DIN). Das Blatt erscheint mit Schriftfeld. Als Abmessungen werden unterhalb des Blatts genannt: 210 mm x 297 mm, also A4-Hochformat. OK. (Bild Z6).
Bild Z5
Bild Z6
Zeichnungsnorm
Wir beschränken uns in diesem Beitrag auf folgende Themen: Normschrift (Art, Schrifthöhe usw.), Maßlinien, Maßpfeile, Bauteilansichten.
Um herauszufinden, welche Normen voreingestellt und welche notfalls zu ändern sind, weil sie nicht der DIN (ISO)-Norm entsprechen, gehen wir so vor:
Extras ––> Optionen ––> Dokumenteigenschaften.
Wir arbeiten nacheinander ab (mit jeweiligem OK):
Entwurfsnorm:
Beschriftungen: Schriftart ISOCPEUR
Einheiten: MMGS