Locher 21.07.2009, 09:18
Auch wenn man es ihm nicht sofort ansieht: Die Achsen des Papierlochers bieten Lehrern und anderen Liebhabern der Geometrie einige Möglichkeiten, sinnvoll mit Geodreieck und Zirkel umzugehen.
Gibt es bei Papierlochern etwas Neues?
Locher
Locher? »Ein Locher ist ein Locher, da gibt es nichts Neues«, wird man vermuten. Trotzdem: Im N+T-Unterricht könnte er als leicht beschaffbares Gerät mit seiner nicht ganz uninteressanten Mechanik gute Dienste tun. Sehen wir ihn doch einmal an.
Man drückt auf den Hebel, spürt dabei den Widerstand einer Schenkelfeder, und die beiden Lochstempel verschwinden im Lagerbock nach unten; ein letzter verstärkter Hebeldruck und in den Klassensatz sind die Löcher gestanzt. Nur die Konfetti in der Auffangschale zeugen von dem rohen Werk. Unter dem Federdruck schnappt der Druckhebel nach oben und der Locher ist für neue Arbeit bereit.
Studieren wir den Mechanismus genauer, dann entdecken wir zwei quer durch den Locher gehende Achsen, die Lagerachse A1 und die Druckstange A2. In der Lagerachse ist der bewegliche Druckhebel gelagert und die Druckstange drückt die beiden Lochstempel mit ihren keilförmigen Schneiden nach unten. Was die Zeichnungen nicht zeigen: Die Lochstempel sind in Laschen eingehängt, die die Lochstempel beim Hochgehen des Hebels mit nach oben ziehen und gleichzeitig die waagrechte Wegkomponente von A2 ausgleichen. (Die Fachsprache bezeichnet die Lochstempel auch als »Lochpfeifen«).
Wir richten unser Augenmerk nur auf die Achsen- und Stempelsituation und überlegen, wie die vier Teile zusammenarbeiten. Dabei gehen wir davon aus, dass sich der Hebel bis zu seinem Anschlag um 55° nach unten schwenken lässt.
Drei Konstruktionsaufgaben
Wir verwenden die auf die Achsen reduzierte Vorzeichnung. Deren Maße sind doppelt so groß gezeichnet wie am Locher gemessen, damit das Konstruieren einfacher wird.
Zeichnen Sie ein bzw. konstruieren Sie
a) die Linie, die die Druckstange A2 beim Herabdrücken des Hebels beschreibt
b) die Stellung von A2, wenn die Unterkante des Lochstempels S auf Schlitzmitte steht
c) die Stellung von A2, wenn der Druckhebel um 55° nach unten geschwenkt ist.
(Zusatzfragen:
d) Was wäre, wenn der Hersteller A2 und S in Ruhestellung genau untereinander platzieren würde? Zeigen Sie die Auswirkung mit einer weiteren Konstruktionszeichnung.
e) Ermitteln Sie zeichnerisch die am Stempelkopf entstehende waagrechte Kraftkomponente, wenn die Druckstange den Stempel wie in Aufgabe a) unter 30° und mit 120 N belasten würde.)
Lösungen
(Antwort auf die Zusatzfrage:
d) Dann würde A2 durch seine Wanderung nach rechts nicht mehr satt auf den Stempelkopf drücken und sich etwa in Mitte des Stempelwegs verkanten.
e) Siehe Skizze:
Zum Thema »Technik des Alltags« schlägt der tec.LEHRERFREUND weitere Projekte vor:
- Mobile im Gleichgewicht
- Papierlocher
- Spanngurt mit Spannschloss
- Flasche verschließen mit mehrgängigen Gewinden
- Was ist ein guter Zirkel?
- Alter Schiffskran
- Druckknopf
- Wie funktioniert ein Kugelschreiber?
- Seifenspender
- Regenschirm
- Einsteckschloss
- Umschaltknarre
- Saiten spannen
- Reißverschluss
- Wasserventil
- Schnappverschluss
usw.
Ergänzung
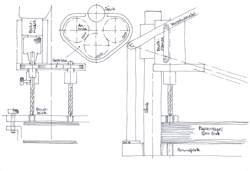
Semesterarbeit Steffi (siehe Kommentar 18. 12. 2009) - Zum Vergrößern Klick aufs Bild, dann rechte Maustaste + "Grafik speichern unter".
tec.LF-Leserin Steffi erhielt als Semesterarbeit die Aufgabe, einen Locher für 500 Blatt Papier zu konstruieren. Der Locher soll den Blattstapel nicht stanzen, sondern bohren.
Wie bei allen technischen Problemstellungen gibt es auch hier verschiedene Lösungsmöglichkeiten. Der tec.LF-Vorschlag als Prinzipskizze: Antrieb mit Handbohrmaschine. Weiterleitung der Drehbewegung über Zwischenrad-Getriebe, damit beide Bohrer in der gleichen Richtung drehen. Bohrervorschub über Handhebel.
Das Projekt stellt sicher eine reizvolle Konstruktionsaufgabe dar, lässt aber bei näherem Hinsehen Fragen offen:
- Marktchancen: Hätte ein solcher Locher Marktchancen? Wahrscheinlich nicht, denn er würde ziemlich teuer.
- Bohrer: Die Bohrer können nur Werkzeuge aus der Holz- oder Kunststoffbearbeitung sein. Dort sind hohe Drehzahlen üblich; die Drehzahl der Bohrer hier müsste bei schätzungsweise 2000 1/min liegen, um saubere Bohrlöcher zu erzeugen.
Dann: Funktioniert bei dem dicken Papierstapel die Spanabfuhr? Wenn die Bohrer heiß werden, ist wegen des Papiers keine Kühlung möglich.
Ergänzung
Kommentar Martin am 19.05.2010






