Spanende Werkzeugmaschinen: Werkzeuge und Werkstücke spannen 04.01.2012, 07:19
In Fertigungsverfahren wirken immer zwei Systeme zusammen: das Werkstück und das Werkzeug. Dabei bewegen sich die beiden relativ zueinander. Dieses System ist das Kernstück jeder Werkzeugmaschine.
Arbeitssysteme
In jedem Fertigungsverfahren wirken zwei Systeme zusammen: Das Werkstück (WS) und das Werkzeug (WZ). Dabei bewegen sich die beiden relativ zueinander. Dieses System ist das Kernstück jeder Werkzeugmaschine.
Damit das Zusammenwirken funktioniert, müssen beide - WZ und WS - sicher eingespannt sein.
Werkzeuge spannen
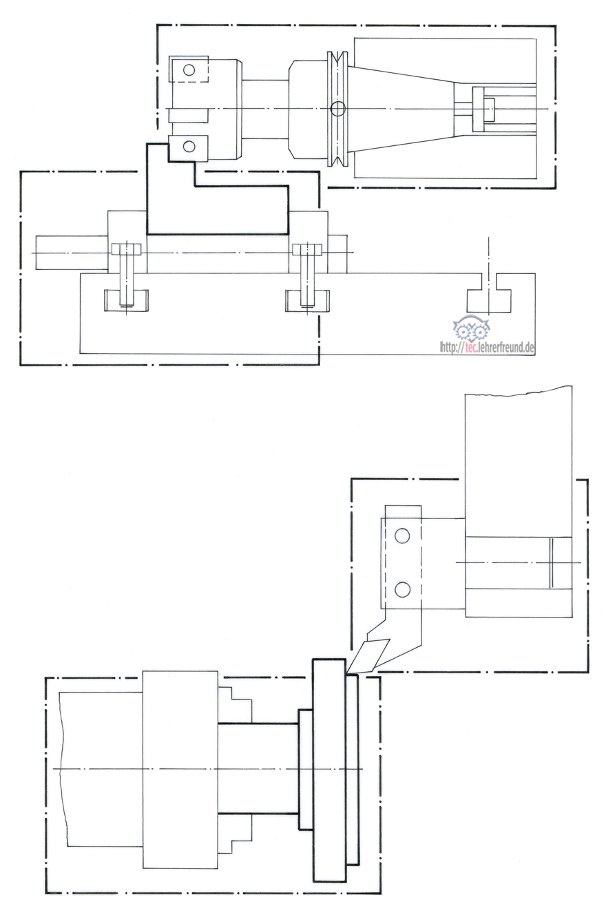
Man unterscheidet Werkzeugsysteme für drehende und stehende Werkzeuge.
Drehende Werkzeuge werden mit Hilfe von genormten kegeligen Aufnahmen gespannt: Morsekegel, Steilkegel, Hohlschaftkegel.
Stehende Werkzeuge können von Mehrfachhalterungen, so genannten Revolvern, aufgenommen werden.
Werkstücke spannen
Es ist zu unterscheiden zwischen prismatischen und zylindrischen Teilen.
Prismatische Teile:
Sie werden mit Spannpratzen auf dem Maschinentisch aufgespannt. Der Maschinentisch ist mit T-Nuten ausgestattet, die die Spannschrauben aufnehmen. Hilfsmittel für das Aufspannen sind neben Schraubstöcken Anschlagklötze und Hebelspanner.
Gespannt wird manuell oder hydraulisch.
Zylindrische Teile:
Spannelemente sind Backenfutter, Spannzangen und andere.
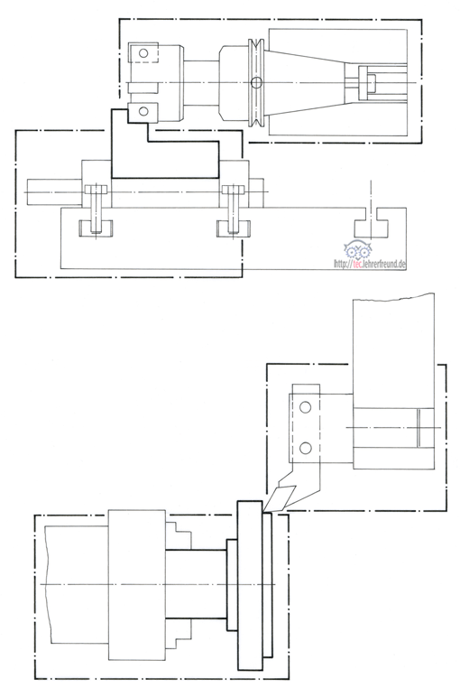
Das Haltesystem hinter dem Spannsystem ist der genormte VDI-Halter. Der zylindrische Zapfen der VDI-Aufnahme besitzt eine Verzahnung, die über eine Schnecke an die Revolverscheibe angepresst wird. Diese Konstruktion gewährleistet eine hohe und verlässliche kraftschlüssige Verbindung. Das Werkzeug wird zentral durch die Aufnahme gekühlt.
Um Werkzeuge mit unterschiedlichen Aufnahmesystemen verwenden zu können, werden Adapter eingesetzt. Mit diesen ist es z.B. möglich, MK-Werkzeugaufnahmen in Maschinen zu verwenden, die für SK-Werkzeugaufnahmen entwickelt wurden.
Darüber hinaus werden in der Industrie mehr und mehr spezielle, auf ein bestimmtes Bauteil zugeschnittene Spannsysteme eingesetzt, die ein Maximum an Produktivität ermöglichen.
Die Skizze unten ist für die Verwendung in Arbeitsblättern gedacht.


