Kranflasche (2) 23.06.2018, 07:14
Der Ausschnitt aus der Gesamtzeichnung der Hakenaufhängung ist zu zeichnen.
Kranflasche mit 1 Rolle
In den Beiträgen Kranflasche (1), Kranflasche (2) und Kranflasche (3) sind zwei Aufgaben zu lösen:
– Kranhaken zeichnen,
– Teilzeichnung der Hakenaufhängung herstellen
Kranflasche (2)
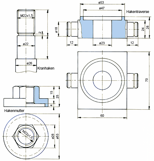
Es ist ein vereinfachter Ausschnitt aus der Gesamtzeichnung der Hakenaufhängung herzustellen. Hier finden Sie die dazugehörigen Einzelteile mit den wichtigsten Maßen. Bestimmen Sie fehlende Maße nach eigenem Gutdünken.
Beschreibung der zu zeichnenden Baugruppe:

Der Haken dreht sich in einem Axial-Rillenkugellager mit den Maßen d x D x B = 25 mm x 47 mm x 15 mm. Das Lager sitzt vertieft in der Hakentraverse. Von oben hält eine Sechskantmutter M 22 x 1,5 dagegen. Mit der Mutter lässt sich auch das Lagerspiel einstellen.
Konstruktiv bilden der Haken und die Seilrolle eine Einheit, die »Unterflasche«. Sie hängt mit den beiden Seilhälften am Krankopf, am Katzfahrwerk oder einer anderen Aufnahme.
Aufgabe: Zeichnen Sie den oberen Teil des Kranhakens im Schnitt A-B mit Haken, Hakentraverse, Axial-Rillenkugellager, Hakenmutter, Sicherungsringen und den 8 mm dicken Laschen als Gesamtzeichnung. Von der Seilrolle wird nur der untere Teil gezeichnet.
Zwischen dem Außendurchmesser der Seilrolle und dem Gewinde M22 x 1,5 des Kranhakens ist ein Abstand von 10 mm.
Die Seilrolle hat einen Durchmesser von 200 mm; sie ist 22 mm breit und nimmt ein Stahlseil mit ø8 mm auf.
Die Einzelteile sind nicht vollständig bemaßt. Finden Sie die fehlenden Maße (z. B. die Ringnuten für die Sicherungsringe an der Hakentraverse).
Einzelteile der Hakenaufhängung