Laufkran: Statik, Kräfte 24.02.2012, 13:58
Die Laufkatze ist die Baugruppe bei Laufkranen, die die Hubeinrichtung trägt. An einem praktischen Beispiel rechnen wir die Motorleistung, die Belastung des Katzrahmens und das Bremssystem durch.
Beachten: Niveau Techn. Gymnasium, Berufskolleg u. Ä.
Laufkran
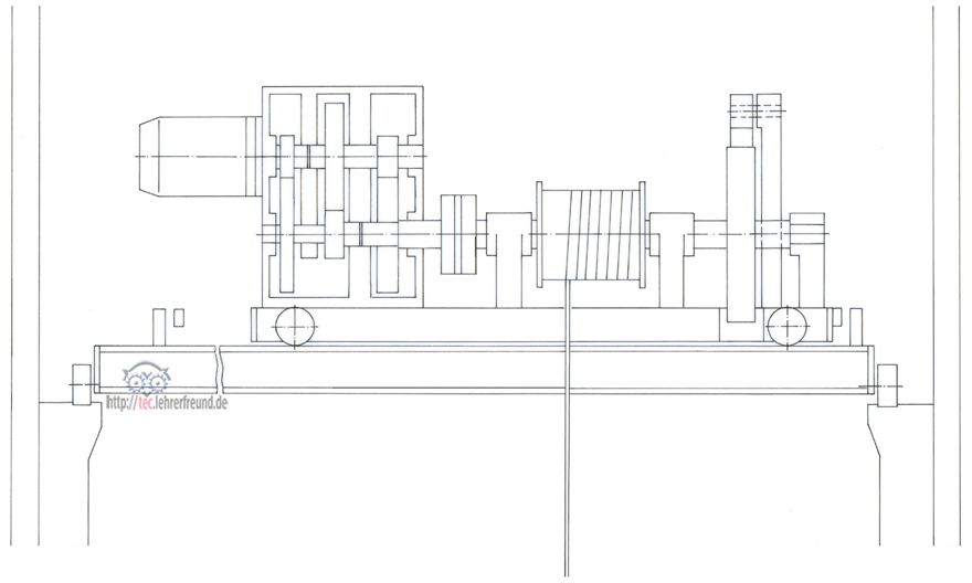
Das Bild zeigt die stark vereinfachte Konstruktion eines Laufkrans, wie sie in Werkstätten und Fabrikhallen eingesetzt werden. Laufkrane bewegen sich auf den Schienen einer Hochbahn und lassen damit Arbeitsflächen am Boden frei. Der farbig dargestellte Teil des Krans ist die quer laufende Laufkatze mit Hubwerksantrieb, deren Kernbaugruppe eine Seilwinde ist. Sie wird von einem E-Motor über ein dreistufiges Getriebe angetrieben.
Gegeben sind:
Motorleistung PM = 17,5 kW; nM = 720 1/min
Getriebe:
z1 = 23
z2 = 70
z3 = 19
z4 = 43
z5 = 19
z6 = 43
Wirkungsgrad ηG = 0,78
Seiltrommel:
Trommeldurchmesser dTr = 260 mm
Last max. FL = 18 kN
ηTr = 0,92
Aufgaben
1. Motorleistung
a) In der Getriebezeichnung sind die Zahnräder zu benennen ( z1, z2, usw.)
b) Das Gesamtübersetzungsverhältnis des Getriebes ist zu berechnen.
c) Der Seiltrommel-Antrieb soll 10% mehr Drehmoment aufnehmen können als am Hubseil bei FL max verlangt wird. Rechnen Sie nach, ob diese Bedingung eingehalten wird.
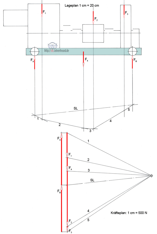
2. Belastung der Laufkatze
Die Hubeinrichtung steht auf zwei Trägern. Die folgenden Lastangaben beziehen sich auf einen Träger.
In F1 = 5 500 N sind die anteiligen Gewichte von Motor, Getriebe und Kupplung zusammengefasst.
In F2 = 12 500 N ist das Seiltrommelgewicht mit der Last FL zusammengefasst.
F3 = 1 200 N ist das Gewicht der Bremseinrichtung.
F4 = 3 000 N ist das Eigengewicht des Laufkatzenrahmens.
Die Lagerkräfte FA und FB (für einen Träger) sind zeichnerisch zu bestimmen.
3. Bremseinrichtung

Der Bremshebel soll an der Scheibe mit dem Durchmesser 320 mm ein Bremsmoment von 2,5 kNm abbremsen. Die Reibzahl zwischen Bremsbelag und Bremsscheibe ist 0,45.
a) Der Bremshebel ist freizumachen
b) Zu berechnen sind die Reibkraft FR und die Normalkraft FN.
c) Zu berechnen sind die Bremskraft FBr und die Lagerkraft FA.
Lösungsvorschläge

1. Motorleistung
a) Zahnräder: siehe Skizze
b) i ges = (z2 ∙ z4 ∙ z6) : (z1 ∙ z3 ∙ z5)
= 70 ∙ 43 ∙ 43) : (23 ∙ 19 ∙ 19)
iges = 15,588
c) Vom Motor kommen an der Seilwinde an:
MTr1 = MM ∙ iges ∙ ηges =
= (9550 ∙ 17,5 : 720) ∙ (iges ∙ ηges)
MTr1 = 2 596,5 Nm
Unter FL = 18 000 N nimmt die Seiltrommel auf:
MTr2 = FL ∙ dTr/2 = 8 000 N ∙ 0,26 m / 2 =
MTr2 = 2 340 Nm
MTr1 : MTr2 = 2 596,5 Nm : 2 340 Nm = 1,11, d. h. der Motorantrieb liefert ein Drehmoment, das 11 % höher ist als das an der Seiltrommel verlangte.
2. Belastung der Laufkatze: siehe Skizze
Kräfte über Seileck ermittelt; herausgemessen:
FA = 11 650 N
FB = 10 550 N
3. Bremse (siehe Skizze)
a) Bremshebel freigemacht
b) Reibkraft FR
FR = MR ∙ 2 : dBr = 2500 Nm ∙ 2 : 0,32 m
FR = 15 625 N
Normalkraft FN
FN = FR : μ = 15 625 N : 0,45 =
FN = 34 722,2 N
c) Bremskraft FBr
ΣM(A) = 0 = FBr ∙ l1 + FR ∙ l3 - FN ∙ l2
FBr . l1 = FN ∙ l2 - FR ∙ l3
FBr = (FN ∙ l2 - FR ∙ l3) : l1
FBr = 3 400,4 N
ΣFx = 0 = FAx - FR –> FAx = FR = 15 625 N
ΣFy = 0 = FN - FAy - FBr –> FAy = FN - FBr
FAy = 34 722,2 N - 3 400,4 N
FAy = 31 321,8 N
FA = √FAx2 + FAy2 = √(15 625 N)2 + (31 321,8 N)2
FA = 35 002,8 N
tan α = FAy : FAx = 31 321,8 N : 15 625 N = 2,005
α = 63,5°
___________________________
Die unvollständige Skizze unten ist für die Verwendung in Arbeitsblättern gedacht.



