Schneckenwelle (1) 14.03.2014, 07:14
Auf der Grundlage eines früheren Beitrags zu Schneckengetrieben soll ein Bauteil aus dem Getriebe gezeichnet und bemaßt werden. Wir erläutern das schrittweise Zeichnen der Schneckenwelle 2.
In einem früheren tec.LF-Beitrag haben wir unter der Rubrik »Zahnräder und Zahnradgetriebe« ein Schneckengetriebe vorgestellt: www.lehrerfreund.de/technik/1s/schneckengetriebe/3232. Die zwei Hauptkomponenten eines Schneckengetriebes sind die Schnecke und das von der Schnecke angetriebene Schneckenrad. Schneckentriebe werden überall dort eingesetzt, wo sich zwei Wellen unter einem Winkel von 90° kreuzen und wo sehr hohe Übersetzungen (i bis 100 : 1) benötigt werden.
Das Ziel des vorliegenden Beitrags ist es, die Schneckenwelle 2 schrittweise zu zeichnen. Die Zeichenschritte werden wir erläutern.
Wir benennen hier die sechs Bauteile, die die Schneckenwelle unmittelbar umgeben (fett geschrieben). Sie bilden die Grundlage für die Bemaßung des zu zeichnenden Teils.

1 = Gehäuse
2 = Schneckenwelle
3 = Deckel
4 = Abstandsring
5 = Deckel
6 = Zylinderrollenlager (DIN 5412)
7 = Schrägkugellager, zweireihig (DIN 628)
8 = Radialdichtring (DIN 3760)
9 = Sicherungsring (DIN 471)
10 = O-Ring (DIN 3771)
11 = Zylinderschraube mit Innensechskant (DIN 7984)
12 = Sicherungsblech (DIN 70952)
13 = Nutmutter (DIN 1804).
Zeichnung 1: Zur dünnen Vorzeichnung schreiben wir die Normteile mit ihren Abmessungen. Diese werden für die korrekte Bemaßung der Welle benötigt.
Anmerkung: Scheibe DIN 462 muss richtig heißen Sicherungsblech DIN 70952
(Wegen der Platzbeengung im vorliegenden Internetformat haben wir die Zeichnungen hoch gestellt).
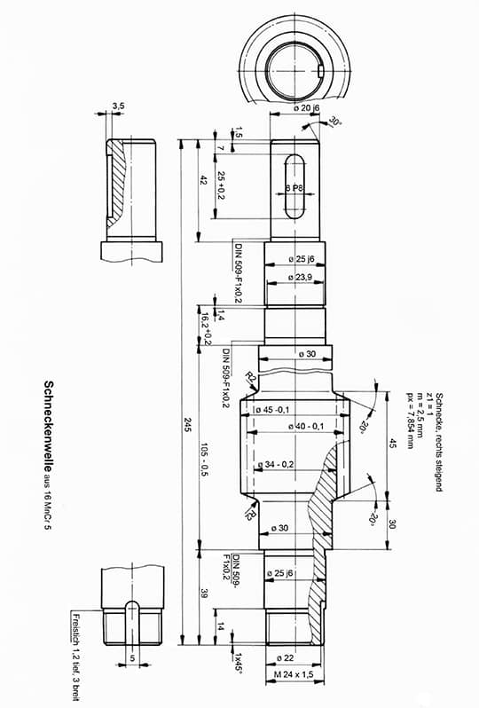
Zeichnung 2: Die Schneckenwelle ist hier auf einem A4-Blatt normgerecht in verschiedenen Strichdicken dargestellt. Um Platz für die Seitenansicht von rechts zu bekommen, wurde in der Vorderansicht ein Durchmesser in der Länge gebrochen dargestellt. Die Passfedernut links braucht für die Bemaßung eine Draufsicht. Das gleiche gilt für die Nute rechts, in die ein Lappen der Sicherungsscheibe eingreift. Der Lappen fungiert als Verdrehsicherung.

Einige zeichnerische Besonderheiten:
– Massive Wellen dürfen der in Längsrichtung nicht im Vollschnitt dargestellt werden. Teilschnitte sind jedoch zur Herausstellung von Einzelheiten erlaubt.
– Die Schneckenverzahnung geht mit einem kleinen Radius in den nächsten Durchmesser über. Da man hier keine klare Ecke hat, verwendet man eine Lichtkante. Sie wird dünn gezeichnet und kurz vor dem Radius unterbrochen.
– Freistiche werden nicht real gezeichnet, sondern einfach mit einem dünnen Strich angedeutet.
Zeichnung 3: Wir haben die Schneckenwelle jetzt bemaßt, sie aber ohne Maßzahlen gelassen. Es empfiehlt sich, sie auszudrucken und die Maße mit Bleistift einzuschreiben. An diesem Bemaßungsentwurf arbeiten wir so lange, bis wir sicher sind, dass die Bemaßung korrekt ist.

Zeichnung 4 (unten): Schneckenwelle mit Bemaßung.
– Grundsätzlich wurde eine Herstellungsbemaßung verwendet. Funktionsbemaßungen sind z. B. für die Sicherungsring-Nute oder beim Abstand 105 mm erforderlich, damit die Schneckenwelle mit der Breite des Zylinderrollenlagers oder den Gehäusegegebenheiten übereinstimmt.
– Informationen zur Schneckenverzahnung werden mit einem Text in der Nähe der Schneckendarstellung angegeben.
– Die Passungen der Durchmesser, auf denen Wälzlager sitzen – ein schwieriges Thema – können aus Tabellen der Wälzlager-Hersteller entnommen werden.
– Informationen zu Toleranzen und Passungen geben die unten in den Links angegebenen Beiträge des tec.LEHRERFREUNDs
– Anmerkung zu den Freistichen: Sie werden als breite Volllinien wie in der Zeichnung unten dargestellt.

Im Folgebeitrag werden wir auf Detailangaben zu den Oberflächen, zur Härtebehandlung und zu den Freistichen eingehen.