Textaufgabe Verteilerhülse 02.05.2018, 06:56
Bei Textaufgaben soll die Beschreibung eines Bauteils mit Buchstaben und Zahlen in eine zeichnerische Projektion transformiert werden. Dies verlangt ein gutes Vorstellungsvermögen. Hier wird die Aufgabe etwas erleichtert, weil die Kontur des Bauteils vorgegeben ist.
Textaufgabe
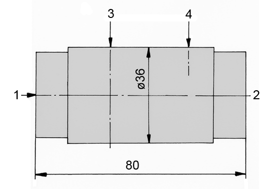
Eine Verteilerhülse ø36 mm x 80 mm lang soll in Ansichten gezeichnet werden. Die folgende Skizze zeigt die Kontur der Verteilerhülse mit ihren Hauptmaßen ø36 und 80. Links und rechts schließt die Hülse mit 12 mm langen Gewindeabsätzen M 32 x 1,5 ab. Die Gewinde sind mit 1 x 45° angefast.

Zeichnen Sie
– die Vorderansicht im Vollschnitt
– die Seitenansicht von rechts im Schnitt durch die Ebene 3
– die Seitenansicht von links im Schnitt durch die Ebene 4
– die Seitenansicht von links.
Beschreibung des Bauteils:
1 Längsbohrung, ø24, 44 tief mit ebenem Boden
2 Längsbohrung, ø24, 32 tief mit ebenem Boden. In der Längsbohrung ergibt sich aus den Längenmaßen eine 4 mm dicke Trennwand.
3 Querbohrung ø24, durchgehend. Mittenabstand von der linken Stirnfläche 28 mm.
4 Querbohrung ø14 bis ø 24, nicht durchgehend. Mittenabstand von der linken Stirnfläche 58 mm.
Zeigen Sie die Konstruktionslinien, die zu den Durchdringungskurven ø24 / ø 24 und ø 14 / ø 24 führen. Wenn die Grenzpunkte bestimmt sind, ist es zulässig, die Kurven näherungsweise als Zirkelbogen zu zeichnen.
Lösungsvorschlag
______________________
Vorlage für ein Aufgabenblatt

